Beskrivelse
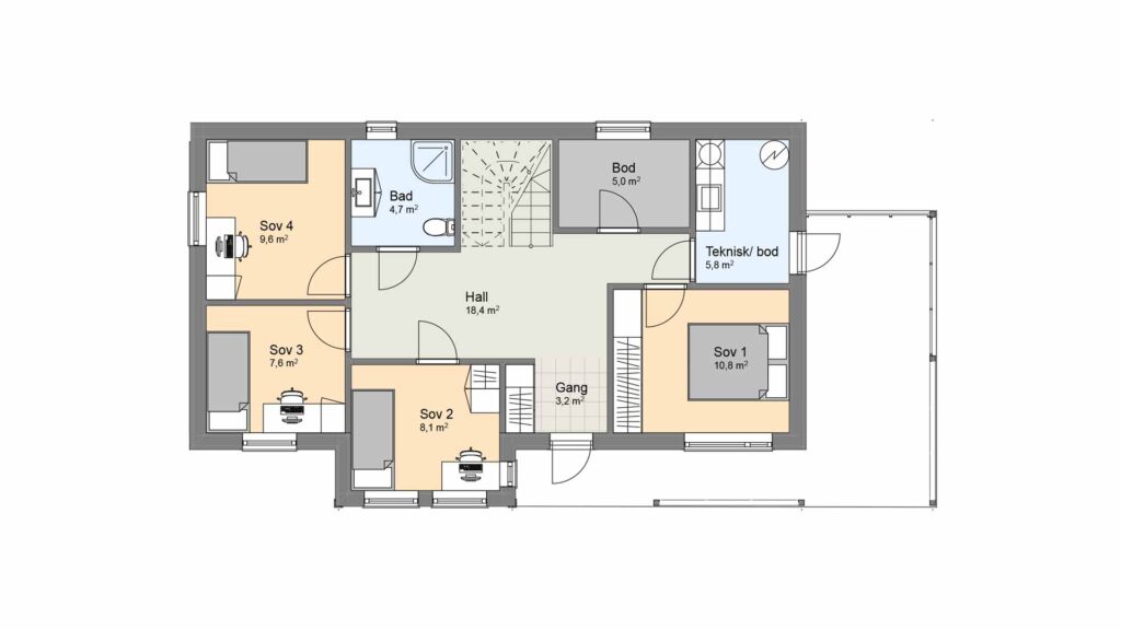
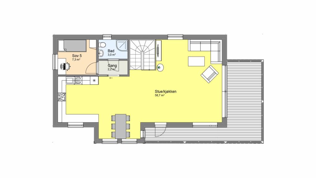
Astro er et stilig hus med saltak og et moderne uttrykk. Huset er innholdsrikt med fire soverom i første etasje, i tillegg til romslig hall, bad, stor bod og teknisk rom. I andre etasje er det et soverom, bad, og et stort og flott stue- og kjøkkenområde som gir en åpen og luftig romfølelse.
En stor veranda med utgang fra stua gir tak til inngangspartiet og en praktisk carport. Dette er et hus med mange muligheter, og kan enkelt deles inn etter dine behov og ønsker.
Nøkkelinformasjon
Boligtype
Enebolig
BRA
175.7 m2
BRA innvendig
154.4 m2
Soverom
5
Tomt
Flat tomt
BYA
114.4 m2
BRA utvendig
21.3 m2
Bad
2
Se flere bilder av Astro
Vi hjelper deg gjerne å gjøre tilpasninger
Ønsker du å gjøre endringer i planløsningen, eller tilpasse boligen til akkurat din tomt?
Vi hjelper deg med både store og små endringer, slik at drømmeboligen blir akkurat slik du vil ha den.
Kontakt oss for en hyggelig prat om ditt prosjekt.
post@norheimshus.no

Ulik grad av ferdigstillelse
Vi leverer fire forskjellige grader av ferdigstillelse;
● Råbygg
● Elektroklart
● Snekkerferdig
● Nøkkelferdig
Graden av ferdigstillelse gjenspeiler seg i prisen. Perfekt for deg som vil gjøre egeninnsats, eller bruke egne håndverkere.
Utforsk flere husmodeller
Astro for skrå tomt
Soverom: 5
BRA: 158.4 m2
Heggen
Soverom: 3
BRA: 139.2 m2
Holleia
Soverom: 3
BRA: 104.9 m2
Linnerud
Soverom: 4
BRA: 144 m2
Haugfoss
Soverom: 4
BRA: 184.3 m2
Astro med hybel
Soverom: 5
BRA: 208.2 m2
















