Beskrivelse
Føn er en stilig hytte med store vindusflater som lar naturen komme tett på. Her finner du et lyst og luftig stue/kjøkkenområde med trapp opp til hems, soverom med garderobe, bad, teknisk rom, gang og utvendig bod.
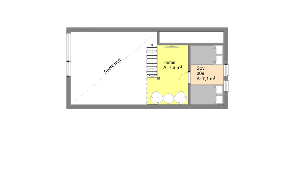
Oppe er det hems med åpen løsning, slik at du kan sitte på hemsen og se ut gjennom de høye vinduene i stua. Innenfor hemsen er det soverom med ekstra sengeplasser.
Nøkkelinformasjon
Hyttetype
Moderne
BRA
52.7 m2
Bredde
6.3 lm
Soverom
2
Gesimshøyde
4,3 lm
Hems
15.3
BYA
48.8m2
Lengde
9.6 lm
Bad
1
Mønehøyde
5.7 lm
Vi hjelper deg gjerne å gjøre tilpasninger
Ønsker du å gjøre endringer i planløsningen, eller tilpasse hytta til akkurat din tomt?
Vi hjelper deg med både store og små endringer, så det blir akkurat slik du vil ha det.
post@norheimshus.no

Ulik grad av ferdigstillelse
Vi leverer fire forskjellige grader av ferdigstillelse;
● Råbygg
● Elektroklart
● Snekkerferdig
● Nøkkelferdig
Graden av ferdigstillelse gjenspeiler seg i prisen. Perfekt for deg som vil gjøre egeninnsats, eller bruke egne håndverkere.
Utforsk flere stiler hos Eventyrhytter
Ønsker du å utforske flere stilretninger? Hos Eventyrhytter finner du hytter som virkelig har et eksklusivt utseende; med bred kledning, torvtak, trerenner og alt som skal til for den rette følelsen.








