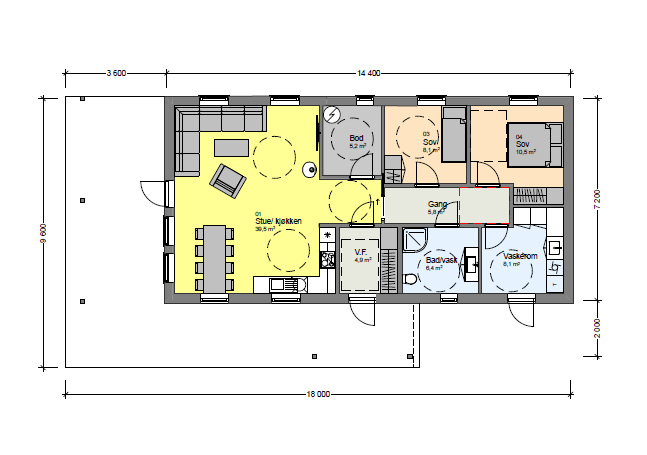
Arealeffektiv enebolig med flotte detaljer
Her har kunden bygget en arealeffektiv enebolig med flotte detaljer som sprosser på vinduer – og takutstikk over terrasse og inngangsparti. Med innvendig BRA på 92,6 m² har huset en god planløsning, som gjør boligen praktisk og innholdsrik.









Planløsning

