Beskrivelse
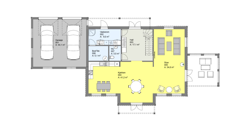
Alexandra er en storslått bolig over to plan for deg som trives med god plass rundt deg. Boligen ønsker velkommen med et overbygget inngangsparti, og herfra kommer du inn i en romslig hall som leder inn i husets store stue og kjøkken. Hallen har også trapp til annen etasje, og tilgang til wc og vaskerom med tilknyttet bod.
Den store stua har en egen tv-avdeling, og i spisestuen kan bordet dekkes til hele storfamilien. Kjøkkenet har mye skapplass og har plass til egen spisegruppe.
I annen etasje finner du en stor loftstue med utgang til balkong, bad, garderobe og fire soverom, eller tre soverom og kontor om du heller ønsker det. Dobbel garasje er integrert i huset, det samme er også en lun utestue. Her er mulighetene mange, uansett hva dine ønsker måtte være!
Nøkkelinformasjon
Boligtype
Enebolig
BRA
301.4 m2
Bredde
12.6 lm
Soverom
4
Tomt
Flat tomt
BYA
205.8 m2
Lengde
24.6 lm
Bad
1
Se flere bilder av husmodell
Vi hjelper deg gjerne å gjøre tilpasninger
Ønsker du å gjøre endringer i planløsningen, eller tilpasse boligen til akkurat din tomt?
Vi hjelper deg med både store og små endringer, slik at drømmeboligen blir akkurat slik du vil ha den.
post@norheimshus.no

Ulik grad av ferdigstillelse
Vi leverer fire forskjellige grader av ferdigstillelse;
● Råbygg
● Elektroklart
● Snekkerferdig
● Nøkkelferdig
Graden av ferdigstillelse gjenspeiler seg i prisen. Perfekt for deg som vil gjøre egeninnsats, eller bruke egne håndverkere.
Se flere husmodeller
Astro for skrå tomt
Soverom: 5
BRA: 158.4 m2
Hedda
Soverom: 4
BRA: 209.6 m2
Enger
Soverom: 4
BRA: 172.4 m2
Hermine
Soverom: 4
BRA: 209.8 m2
Alexandra
Soverom: 4
BRA: 301.4 m2
Astro med hybel
Soverom: 5
BRA: 208.2 m2







