Beskrivelse
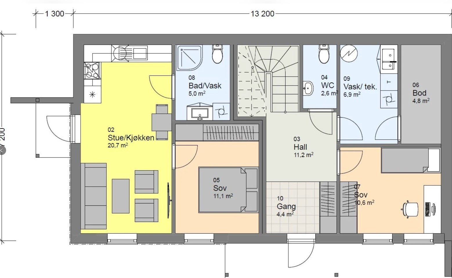
Jellum er et tradisjonsrikt hus for skrå tomter som inneholder alt en familie trenger. Her ønskes du velkommen av en stor og fin hall, med inngang til en romslig tv-stue som fort blir ungdommenes favorittsted. Første etasje inneholder også wc, bad, vaskerom og boder. Her kan også planløsningen enkelt endres om det er behov for et ekstra soverom.
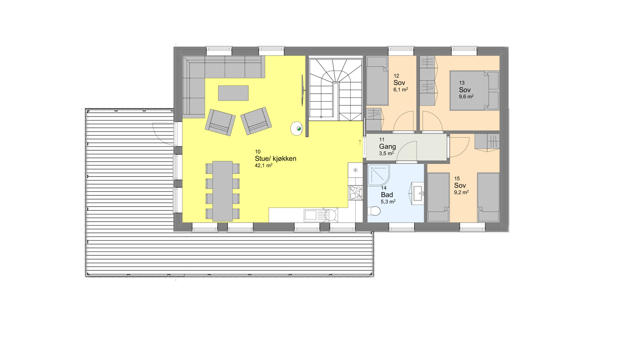
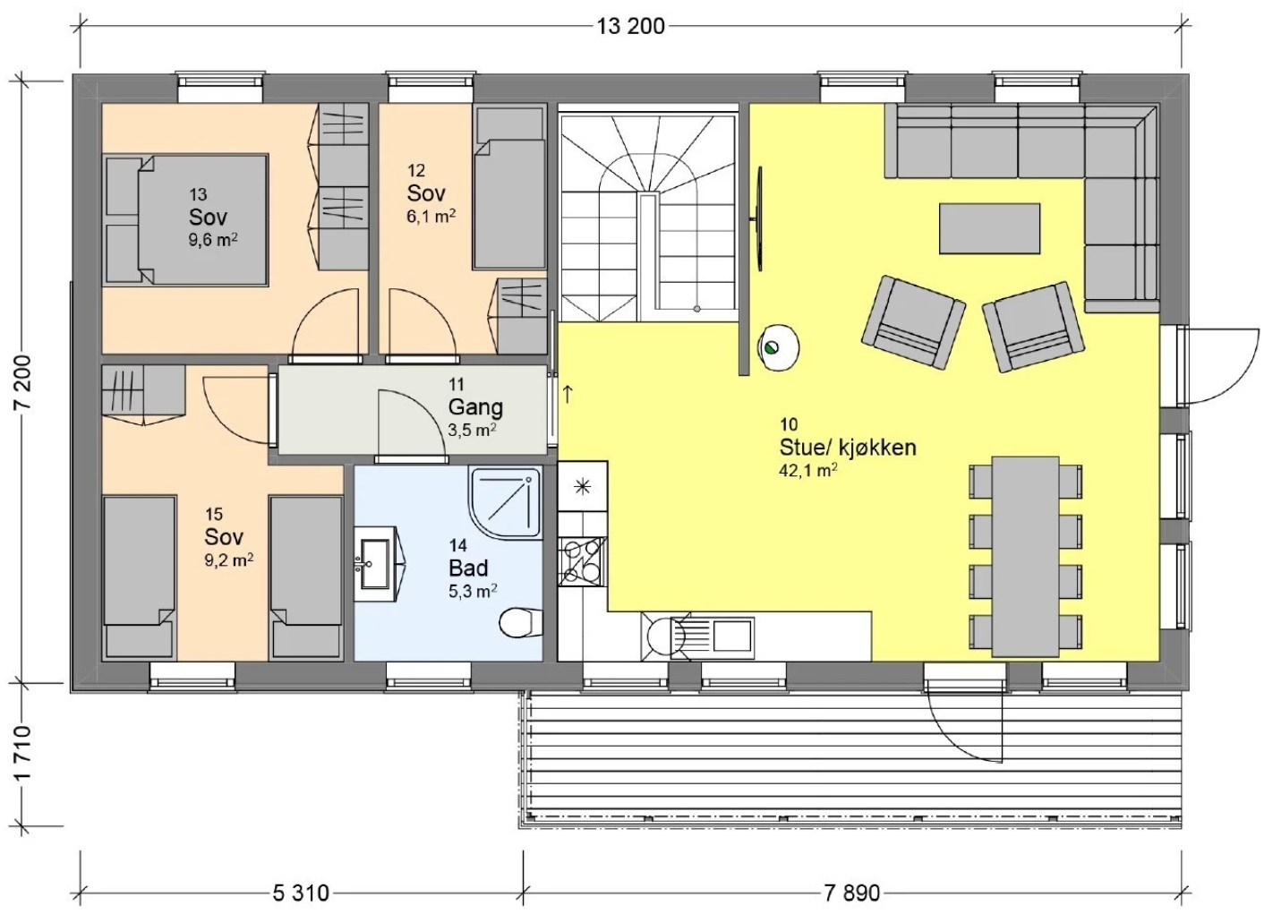
I andre etasje kommer du opp i et åpent stue- og kjøkkenområde, hvor det er utgang til en stor veranda. I soveromsavdelingen er det tre soverom og bad, og skyvedøren inn til avdelingen kan lukkes for litt ekstra stillhet og privatliv.
Nøkkelinformasjon
Boligtype
Enebolig
BRA
201.7 m2
Bredde
9.2 lm
Soverom
4
Gesimshøyde
5.2 lm
Tomt
Skrå tomt
BYA
135 m2
Lengde
16.8 lm
Bad
2
Mønehøyde
6.9 lm
Se flere bilder av Jellum
Vi hjelper deg gjerne å gjøre tilpasninger
Ønsker du å gjøre endringer i planløsningen, eller tilpasse boligen til akkurat din tomt?
Vi hjelper deg med både store og små endringer, slik at drømmeboligen blir akkurat slik du vil ha den.
post@norheimshus.no

Ulik grad av ferdigstillelse
Vi leverer fire forskjellige grader av ferdigstillelse;
● Råbygg
● Elektroklart
● Snekkerferdig
● Nøkkelferdig
Graden av ferdigstillelse gjenspeiler seg i prisen. Perfekt for deg som vil gjøre egeninnsats, eller bruke egne håndverkere.










