Beskrivelse
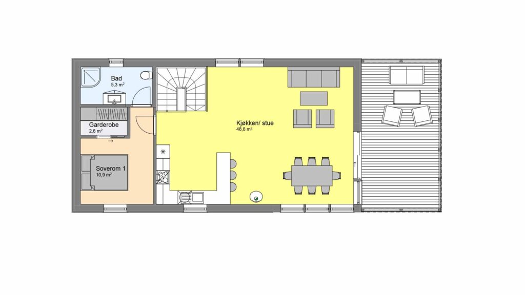
Enger er et flott to-etasjes hus som kan passe på både flate og skrå tomter. Et overbygget inngangsparti leder inn i en romslig gang med trapp og plass til garderobe. Her finnes også tre gode soverom, bad, bod, teknisk rom og vaskerom.
I andre etasje kommer du opp i det åpne kjøkken- og stueområdet som gir en luftig følelse. Her finner du også en egen foreldreavdeling, med soverom med walk-in garderobe og eget bad. Stuen har utgang til en romslig veranda.
Nøkkelinformasjon
Boligtype
Enebolig
BRA
172.4 m2
Bredde
8 lm
Soverom
4
Gesimshøyde
6.1 lm
Tomt
Flat tomt
BYA
114 m2
Lengde
16.3 lm
Bad
2
Mønehøyde
7.7 lm
Se flere bilder av husmodell
Vi hjelper deg gjerne å gjøre tilpasninger
Ønsker du å gjøre endringer i planløsningen, eller tilpasse boligen til akkurat din tomt?
Vi hjelper deg med både store og små endringer, slik at drømmeboligen blir akkurat slik du vil ha den.
post@norheimshus.no

Ulik grad av ferdigstillelse
Vi leverer fire forskjellige grader av ferdigstillelse;
● Råbygg
● Elektroklart
● Snekkerferdig
● Nøkkelferdig
Graden av ferdigstillelse gjenspeiler seg i prisen. Perfekt for deg som vil gjøre egeninnsats, eller bruke egne håndverkere.
Se flere husmodeller
Tyrifjord 120
Soverom: 4
BRA: 119.7 m2
Tyrifjord 80
Soverom: 3
BRA: 80.7 m2
Tyrifjord Standard
Soverom: 3
BRA: 91 m2
Linnerud med hybel
Soverom: 5
BRA: 144 m2
Enger
Soverom: 4
BRA: 172.4 m2
Astro for skrå tomt
Soverom: 5
BRA: 158.4 m2







