Beskrivelse
Tyrifjord 120 er en arealeffektiv bolig, med alt på en flate. Her kan du leve enkelt, samtidig som du har alt du trenger.
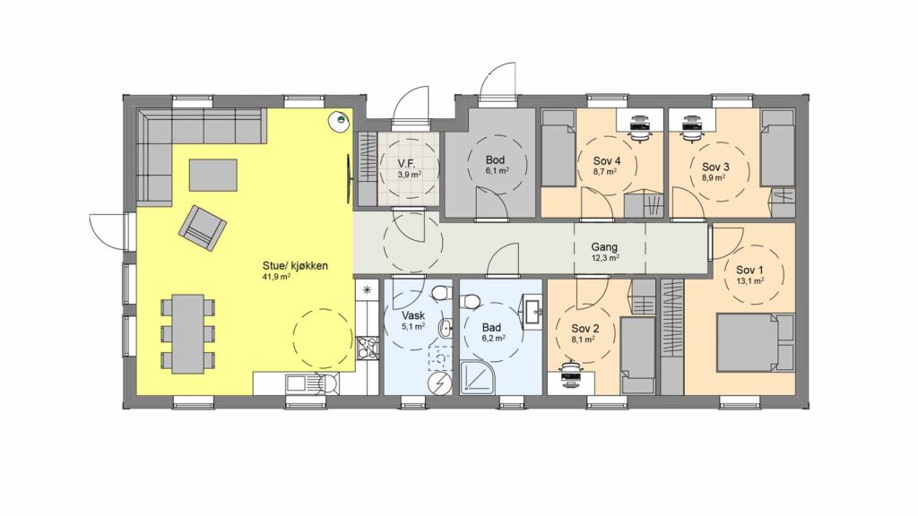
I entréen er det god plass til garderobeskap. Huset har også en romslig bod, med praktisk tilkomst fra både utside og innside.
Det er en åpen stue/kjøkken-løsning på hele 41,9 m². Huset rommer 4 soverom som er plassert på motsatt side av boligen, godt avgrenset fra den sosiale sonen – som gir ro for den som vil legge seg tidligere. Huset har eget vaskerom med toalett, samt et romslig baderom.
Nøkkelinformasjon
Boligtype
Enebolig
BRA
119.7 m2
Bredde
8 lm
Soverom
4
Gesimshøyde
3.2 lm
Tomt
Flat tomt
BYA
137.5 m2
Lengde
17.4 lm
Bad
1.5
Mønehøyde
5.1 lm
Se flere bilder av husmodell
Merk at disse bildene avviker fra tegningene.
Vi hjelper deg gjerne å gjøre tilpasninger
Ønsker du å gjøre endringer i planløsningen, eller tilpasse boligen til akkurat din tomt?
Vi hjelper deg med både store og små endringer, slik at drømmeboligen blir akkurat slik du vil ha den.
post@norheimshus.no

Ulik grad av ferdigstillelse
Vi leverer fire forskjellige grader av ferdigstillelse;
● Råbygg
● Elektroklart
● Snekkerferdig
● Nøkkelferdig
Graden av ferdigstillelse gjenspeiler seg i prisen. Perfekt for deg som vil gjøre egeninnsats, eller bruke egne håndverkere.
Se flere husmodeller
Tyrifjord 120
Soverom: 4
BRA: 119.7 m2
Tyrifjord 80
Soverom: 3
BRA: 80.7 m2
Tyrifjord Standard
Soverom: 3
BRA: 91 m2
Linnerud med hybel
Soverom: 5
BRA: 144 m2
Enger
Soverom: 4
BRA: 172.4 m2
Astro for skrå tomt
Soverom: 5
BRA: 158.4 m2









