Beskrivelse
Økosmart 5 er et stilig hus i to etasjer som har et lite fotavtrykk, men likevel inneholder alt en familie trenger! I første etasje er de tre soverommene samlet, i tillegg til bad og gang med trapp. Hovedsoverommet har utgang til uteplass.
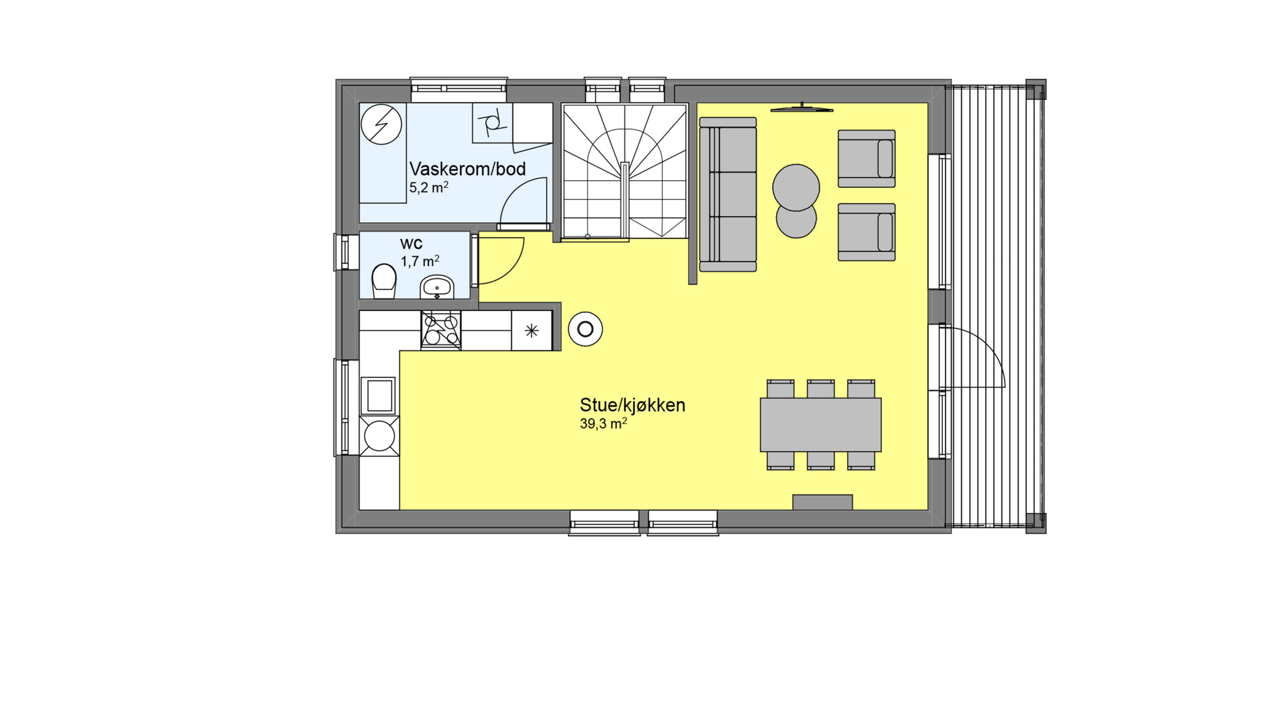
I andre etasje finner du et åpent stue- og kjøkkenområde som gir en luftig følelse, med store vinduer og utgang til overbygget balkong. WC og vaskerom finnes også i andre etasje, og gjør huset komplett og effektivt.
Nøkkelinformasjon
Boligtype
Enebolig
BRA
125.1 m2
Bredde
8.6 lm
Soverom
3
Gesimshøyde
5.8 lm
Tomt
Flat tomt
BYA
81.3 m2
Lengde
10.5 lm
Bad
1
Mønehøyde
7.4 lm
Se flere bilder av husmodell
Vi hjelper deg gjerne å gjøre tilpasninger
Ønsker du å gjøre endringer i planløsningen, eller tilpasse boligen til akkurat din tomt?
Vi hjelper deg med både store og små endringer, slik at drømmeboligen blir akkurat slik du vil ha den.
post@norheimshus.no

Ulik grad av ferdigstillelse
Vi leverer fire forskjellige grader av ferdigstillelse;
● Råbygg
● Elektroklart
● Snekkerferdig
● Nøkkelferdig
Graden av ferdigstillelse gjenspeiler seg i prisen. Perfekt for deg som vil gjøre egeninnsats, eller bruke egne håndverkere.











