Beskrivelse
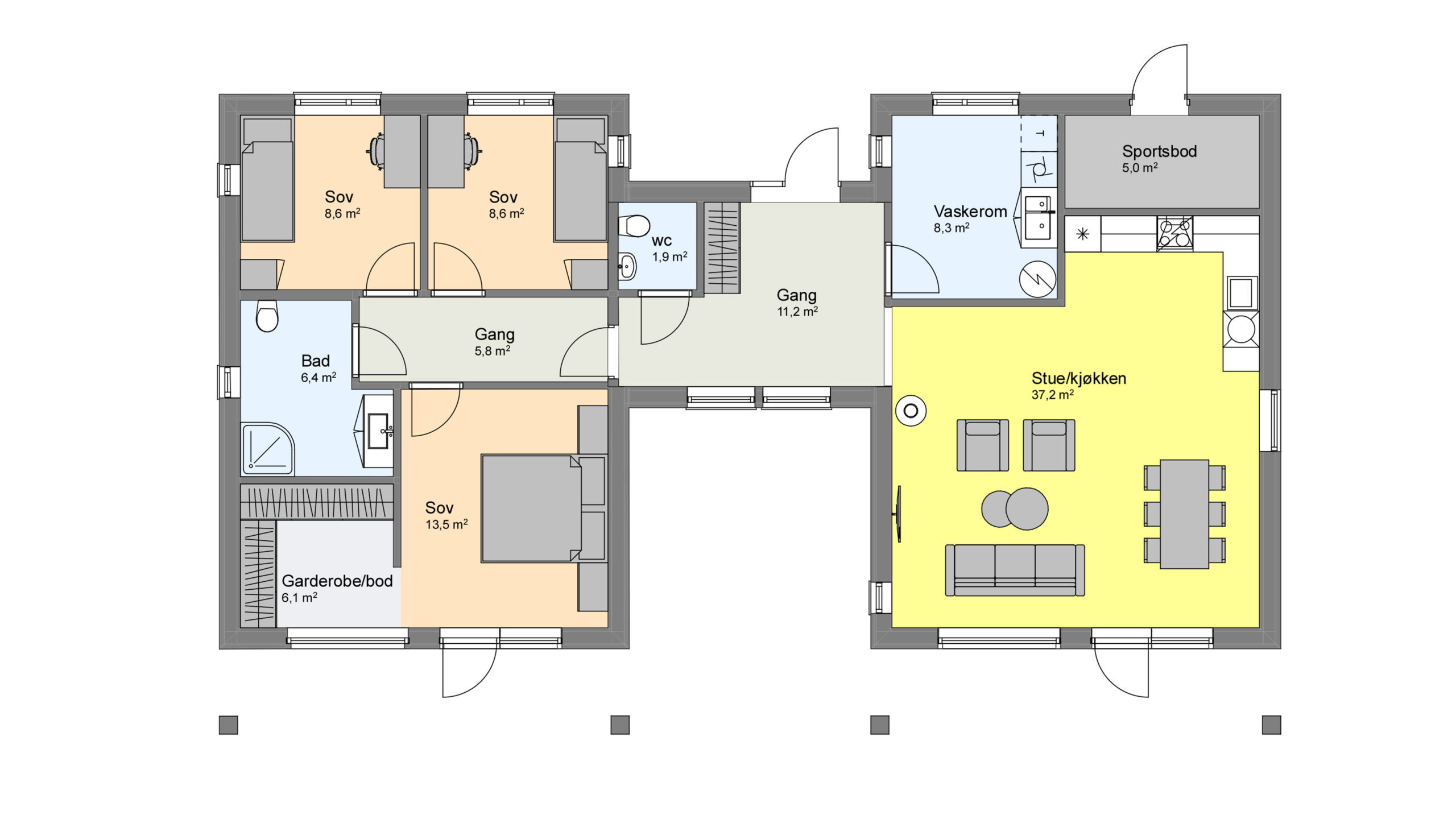
Økosmart Atrium er vår største Økosmart-modell, og består av to bygningskropper som knyttes sammen med et mellombygg. Dette skaper en privat og skjermet uteplass mellom byggene, hvor lange sommerkvelder kan nytes i fred og ro.
Et overbygget og lunt inngangsparti ønsker velkommen inn i en lys og åpen hall, som leder deg inn i en luftig stue- og kjøkkenløsning som har de samme store vinduene vi finner på alle Økosmart-modellene. Et romslig vaskerom og sportsbod har også plass i denne fløyen. Soveromsavdelingen er praktisk adskilt fra oppholdsrommene, noe som gir ro for barna eller de som ønsker å ta en tidlig kveld. Et stilig og praktisk hus!
Nøkkelinformasjon
Boligtype
Enebolig
BRA
136.4 m2
Bredde
10.5 lm
Soverom
3
Tomt
Flat tomt
BYA
153.4 m2
Lengde
17.4 lm
Bad
1
Se flere bilder av husmodell
Vi hjelper deg gjerne å gjøre tilpasninger
Ønsker du å gjøre endringer i planløsningen, eller tilpasse boligen til akkurat din tomt?
Vi hjelper deg med både store og små endringer, slik at drømmeboligen blir akkurat slik du vil ha den.
post@norheimshus.no

Ulik grad av ferdigstillelse
Vi leverer fire forskjellige grader av ferdigstillelse;
● Råbygg
● Elektroklart
● Snekkerferdig
● Nøkkelferdig
Graden av ferdigstillelse gjenspeiler seg i prisen. Perfekt for deg som vil gjøre egeninnsats, eller bruke egne håndverkere.






