Beskrivelse
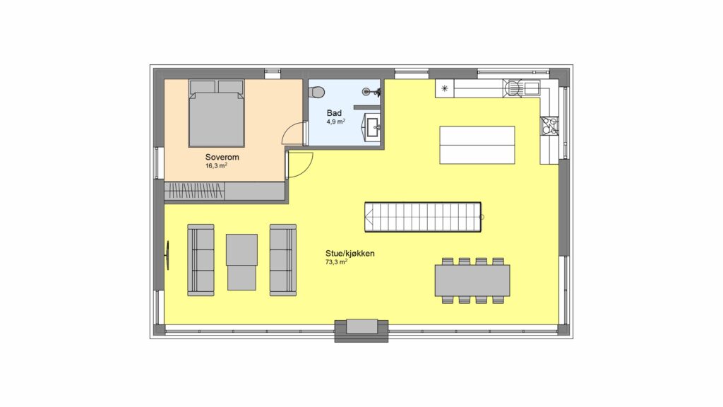
Jupiter er et moderne hus som passer perfekt på en utsiktstomt. De store vinduene i front lar deg nyte naturen og himmelens storhet til det fulle. Stuen og kjøkkenet ligger i annen etasje for den beste utsikten, og en åpen løsning gir en luftig og god romfølelse og en god sosial arena. Trappen midt i rommet lar deg kjenne på dette med en gang du kommer opp. På dette planet finner du også et stort soverom med tilhørende bad.
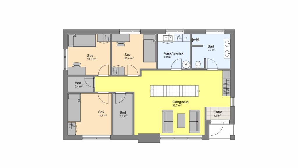
I første etasje kommer du inn i en romslig gang hvor det ved siden av trappen er en tv-stue med store vinduer. Bad og vaskerom ligger lett tilgjengelig ved trappen, og lenger inn i gangen finner du tre gode soverom i tillegg til to boder. Boligen har et slakt skrånende pulttak, og blikkfanget er det store steinkledde feltet som inneholder pipen og går helt fra grunnen til over taket. Et moderne hus med rene linjer og fine detaljer.
Nøkkelinformasjon
Boligtype
Enebolig
BRA
199 m2
Bredde
8.6 lm
Soverom
4
Tomt
Flat tomt
BYA
114.8 m2
Lengde
13.4 lm
Bad
2
Se flere bilder av husmodell
Vi hjelper deg gjerne å gjøre tilpasninger
Ønsker du å gjøre endringer i planløsningen, eller tilpasse boligen til akkurat din tomt?
Vi hjelper deg med både store og små endringer, slik at drømmeboligen blir akkurat slik du vil ha den.
post@norheimshus.no

Ulik grad av ferdigstillelse
Vi leverer fire forskjellige grader av ferdigstillelse;
● Råbygg
● Elektroklart
● Snekkerferdig
● Nøkkelferdig
Graden av ferdigstillelse gjenspeiler seg i prisen. Perfekt for deg som vil gjøre egeninnsats, eller bruke egne håndverkere.







