Beskrivelse
Neptun er et funksjonelt og arealeffektivt hus med moderne linjer. Det har en praktisk carport som lar bilen få ly for vær og vind, og samtidig fungerer som gulv for terrassen i annen etasje.
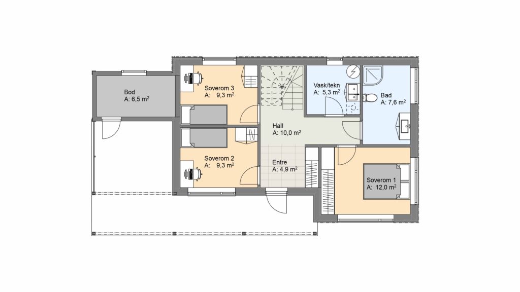
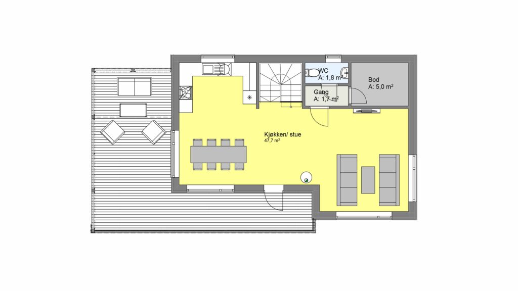
I første etasje kommer du inn i en romslig hall med trapp, som gir deg tilgang til tre soverom, bod og bad. Oppe finner du et åpent stue og kjøkkenområde som gir en luftig romfølelse, og her er det plass til å ha hele vennegjengen på middagsbesøk.
Stuen har utgang til den store takterrassen som lar deg nyte solfylte sommerdager og sene kvelder.
Nøkkelinformasjon
Boligtype
Enebolig
BRA
148.6 m2
Bredde
8.1 lm
Soverom
3
Tomt
Flat tomt
BYA
106.6 m2
Lengde
14.0 lm
Bad
1
Se flere bilder av husmodell
Vi hjelper deg gjerne å gjøre tilpasninger
Ønsker du å gjøre endringer i planløsningen, eller tilpasse boligen til akkurat din tomt?
Vi hjelper deg med både store og små endringer, slik at drømmeboligen blir akkurat slik du vil ha den.
post@norheimshus.no

Ulik grad av ferdigstillelse
Vi leverer fire forskjellige grader av ferdigstillelse;
● Råbygg
● Elektroklart
● Snekkerferdig
● Nøkkelferdig
Graden av ferdigstillelse gjenspeiler seg i prisen. Perfekt for deg som vil gjøre egeninnsats, eller bruke egne håndverkere.







