Beskrivelse
Saturn er en moderne bolig med særpreg for deg som ønsker noe litt annerledes. Med spennende vinkler og store vindusflater får du et hus som virkelig skiller seg ut.
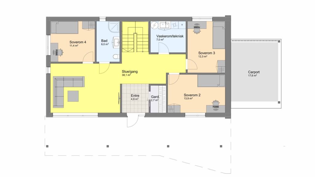
I første etasje kommer du inn i entréen hvor du har en praktisk garderobe med plass til både klær og sko. Videre finner du en romslig tv-stue med store vinduer, tre store soverom, bad og vaskerom.
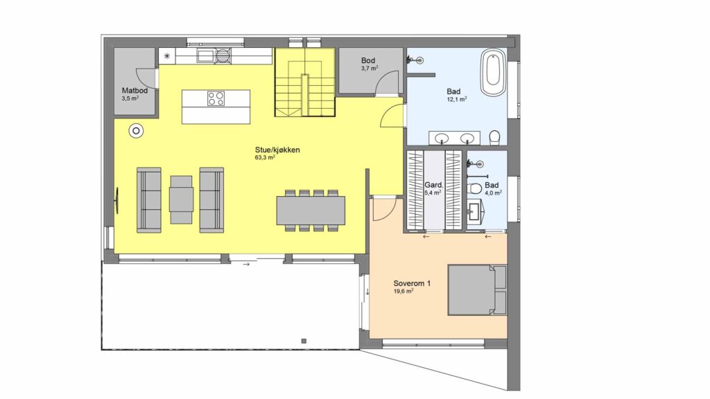
I andre etasje kommer du opp i et stort stue- og kjøkkenområde, hvor store vinduer slipper inn mye lys og gir en luftig romfølelse. Stuen har utgang til en fin veranda med glassrekkverk, som også gir tak til inngangspartiet under. Kjøkkenet har en praktisk matbod, og en kjøkkenøy som skaper en sosial arena. I motsatt ende av huset befinner det seg et stort bad, og inngang til hovedsoverommet. Hovedsoverommet har store vinduer og utgang til veranda, og har eget bad og walk-in garderobe.
Huset kan enkelt tilpasses både skrå og flate tomter.
Nøkkelinformasjon
Boligtype
Enebolig
BRA
269.7 m2
Bredde
10.4 lm
Soverom
4
Tomt
Flat tomt
BYA
171.3 m2
Lengde
18.6 lm
Bad
3
Se flere bilder av husmodell
Vi hjelper deg gjerne å gjøre tilpasninger
Ønsker du å gjøre endringer i planløsningen, eller tilpasse boligen til akkurat din tomt?
Vi hjelper deg med både store og små endringer, slik at drømmeboligen blir akkurat slik du vil ha den.
post@norheimshus.no

Ulik grad av ferdigstillelse
Vi leverer fire forskjellige grader av ferdigstillelse;
● Råbygg
● Elektroklart
● Snekkerferdig
● Nøkkelferdig
Graden av ferdigstillelse gjenspeiler seg i prisen. Perfekt for deg som vil gjøre egeninnsats, eller bruke egne håndverkere.







